|
|
|
|
|
沼田市利根町園原 |
|
建物:53坪 |
2,980万円 |
| 沼田市利根町園原の中古丸太のログハウスです。 園原湖のほとりに建っています。 沼田インターからも約20分とアクセス良好! 銀行融資をお考えのお客様へ |
|||
| 《お問い合わせ》 eメール → 資料請求 housan@mail.wind.ne.jp 電話 → 0278-22-6203 FAX → 0278-23-7877 |
|||
| 【物件概要】 | |
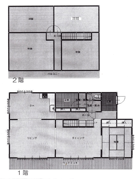
| ★面積 | 土地:1,428.35㎡(432坪) 建物: 1階 125.04㎡(37.8坪) 2階 52.84㎡(15.9坪) 計 177.88㎡(53.8坪) 平成4年築(1992年築) |
| ★アクセス | 関越自動車道 沼田インターより約14.5km、車で約20分 |
| ★都市計画 他 | 都市計画区域外 |
| ★設備 | 東京電力・市営水道・プロパンガス・浄化槽処理 |
| ★周辺環境 | |
| ★取引 | 仲介 *仲介物件の為、不動産仲介手数料がかかります ★現在も居住中です ★引渡しは令和9年3月になります |
| ★備考 | 固定資産税109,500円(年間) |
| ★購入費用 | 1)物代金…29,800,000円 2)印紙代…10,000円 3)所有権移転登記…約270,000円 4)不動産仲介手数料…1,049,400円(税込) 5)固定資産税清算金 計 31,129,400円(概算) |
| ★リフォーム | ちゃんとメンテナンスを繰り返しています ・ウッドデッキの新設 ・外壁、全面塗装 ・給湯器の交換 ・上水道配管、全管取り換え ・薪ストーブ入れ替え新設 ・配水用の浸透桝交換 ・屋根、全面張り替え |
| 《令和8年2月撮影》 *今年は雪も少いです。陽気もいいです… 少しづつですが清掃作業を進めています* |
||
![]() |
![]() |
|
| 建物外観。丸太ログハウス | ||
![]() |
![]() |
|
| 丸太ログハウス | 1階、デッキ | |
![]() |
![]() |
|
| 薪置き場 | 玄関付近 | |
![]() |
||
| 玄関付近 | ||
|
|
||
![]() |
![]() |
|
| 1階、リビング、吹き抜けもあり、広いです | ||
![]() |
![]() |
|
| 1階、リビング、吹き抜けもあり、広いです | ||
![]() |
![]() |
|
| リビングには薪ストーブもついてます | 廊下 | |
![]() |
![]() |
|
| リビングからキッチンへ | 和室8畳 | |
![]() |
![]() |
|
| キッチン | ||
![]() |
![]() |
|
| 玄関 | ||
![]() |
![]() |
|
| 風呂 | トイレ | |
![]() |
![]() |
|
| 洗面所 | 脱衣所 | |
|
|
||
![]() |
![]() |
|
| 2階には、広い寝室が2部屋 | ||
|
|
||
| 《令和7年12月撮影》 | ||
![]() |
![]() |
|
| 建物外観。丸太ログハウス | ||
![]() |
![]() |
|
| 丸太です。薪もたくさん仕込んであります | ||
![]() |
![]() |
|
| ログの裏側 | ウッドデッキは10年前に造り替えました | |
|
|
||
![]() |
![]() |
|
| 玄関付近です | ||
![]() |
![]() |
|
| 斜面の上に建ってますす | 車で上まであがれます。車はここからバックでログの前へ | |
![]() |
||
| ここが入口でスロープを車で上がっていきます | ||
![]() |
![]() |
|
| 目の前は園原湖 | ||
![]() |
![]() |
|
| 園原ダム、園原湖がダムの湖です | ||
|
|
||
《間取り図》 ![]() |
||
《航空写真》 ![]() |
||
トップページに戻る |